SMITHSONIAN INSTITUTE STUDIES & SUPPORT / ENABLING PROJECTS

WASHINGTON, DISTRICT OF COLUMBIA - 2015-2022

PROGRAM:

FEASIBILITY AND PROGRAM STUDIES, ENABLING / SUPPORT PROJECTS

ROLE:

PROJECT MANAGEMENT - NZP BUS CIRCULATION STUDY, NASM UHC ELECTRICAL FEEDER UPGRADE STUDY, NMAH FIRE ALARM UPGRADE & SECURITY CONTROL CENTER RELOCATION PROJECT

PROJECT ARCHITECT - SCBI CHEETAH YARDS PROJECT

PROJECT SUPPORT - NMAH PSRP IV PRE-PLANNING REPORT

NARRATIVE:

OVER THE COURSE OF 5 YEARS (2016-PRESENT) I HAVE WORKED WITH THE SMITHSONIAN INSTITUTE ON A NUMBER OF FEASIABILITY AND PROGRAM STUDIES AS WELL AS SUPPORT / ENABLING PROJECTS ACROSS A VARIETY OF THEIR SITES (NMAH, NASM-UHC @ DULLES, NZP, SCBI).

 

NATIONAL MUSEUM OF AMERICAN HISTORY (NMAH)

Cover from SI_NMAH_Pre-Project_Planning_Report_PSRP IV_Final_Volume 1_To Print.jpg
COLLECTION PROTECTION PLAN FOR FIRE ALARM UPGRADE PROJECT

COLLECTION PROTECTION PLAN FOR FIRE ALARM UPGRADE PROJECT

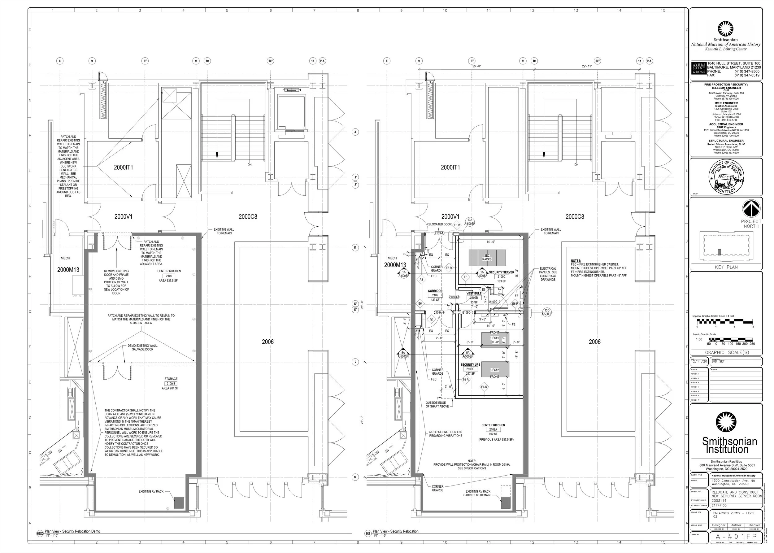
RELOCATION OF SECURITY CONTROL CENTER PROJECT (LEFT IS EXISTING, RIGHT IS PROPOSED)

RELOCATION OF SECURITY CONTROL CENTER PROJECT (LEFT IS EXISTING, RIGHT IS PROPOSED)

 

NATIONAL AIR AND SPACE MUSEUM (NASM) @ DULLES UDVAR HAZY CENTER (UHC)

Cover from 1754501_NASM_UHC_Electrical_Feeder_Upgrade_Report_FINAL.jpg
UHC MASTER PLAN

UHC MASTER PLAN

 

NATIONAL ZOOLOGICAL PARK (NZP)

Cover from 0333114_SI_NZP_Bus Circulation Study_Vol 1_Preface&Report_FINAL.jpg
NZP MASTER PLAN - PARKING AND VEHICLE CIRCULATION

NZP MASTER PLAN - PARKING AND VEHICLE CIRCULATION

 

SMITHSONIAN CONSERVATION AND BIOLOGICAL INSTITUTE (SCBI)

CHEETAH HUT

CHEETAH HUT

CHEETAH HUT DOCUMENTATION

CHEETAH HUT DOCUMENTATION

SITE PLAN

SITE PLAN